| Numer oferty | 4231 |
| Stan oferty | Aktualna |
| Województwo | wielkopolskie |
| Miasto | Poznań |
| Ulica | Henryka Sienkiewicza |
| Dzielnica | Jeżyce |
| Cena sprzedaży | 1 250 000 zł |
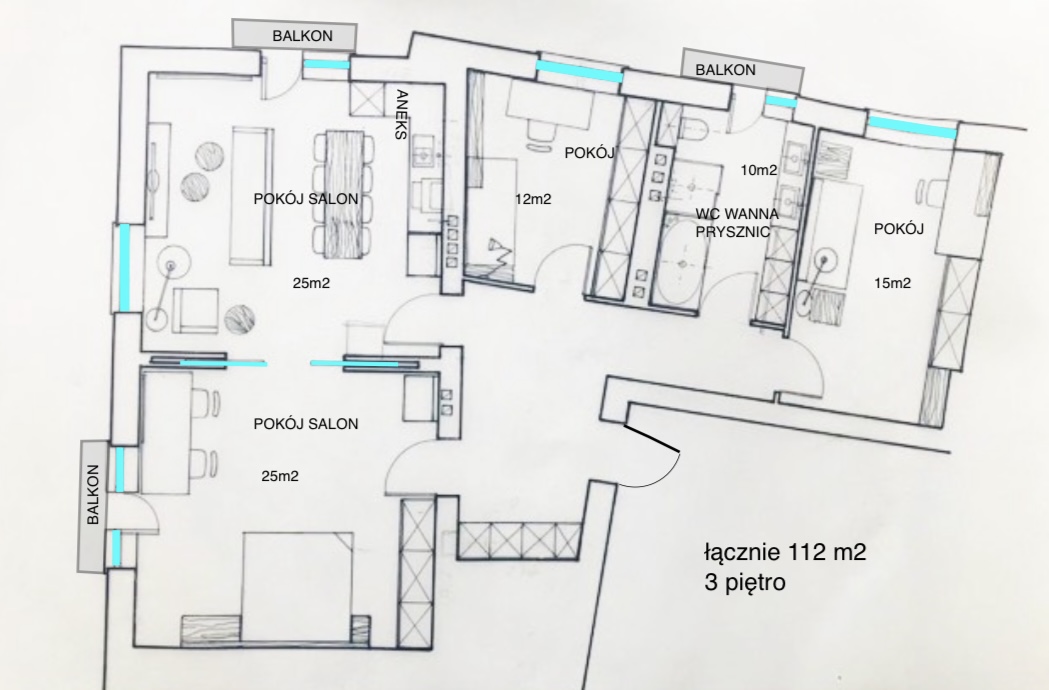
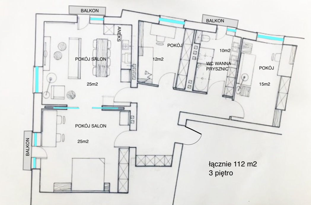
| Powierzchnia | 113.3 m2 |
| Liczba pokoi | 4 |
| Piętro | 3 |
| Liczba pięter w budynku | 4 |
| Typ budynku | |
| Opis | Zapraszam do zapoznania się z ofertą wyjątkowego mieszkania na Poznańskich Jeżycach! Nieruchomość w kamienicy z 1930 roku, idealna dla osób poszukujących wnętrza z duszą, w którym historia spotyka się z nowoczesnością. Najważniejsze atuty mieszkania: * Klimat kamienicy - wysokie sufity, przestronne wnętrza i wyjątkowa atmosfera * Oryginalny, wycyklinowany parkiet - pięknie zachowany i odnowiony, dodaje wnętrzu elegancji i charakteru * Mieszkanie po remoncie - wymienione instalacje, odświeżone ściany * 3 balkony - rzadko spotykany atut, idealny do porannej kawy, popołudniowego relaksu i wieczornego odpoczynku * Oryginalne piece kaflowe - stanowią wyjątkową ozdobę i podkreślają charakter wnętrza * Top lokalizacja – Jeżyce! – najbardziej lubiana dzielnica Poznania. Kawiarnie, restauracje, Rynek Jeżycki, komunikacja miejska, parki – wszystko w zasięgu kilku kroków Mieszkanie o powierzchni 112 m2 składa się z: - 3 pokoi - salonu z aneksem kuchennym - przestronnego korytarza - łazienki. Czynsz do administracji w wysokości 750 zł. Dodatkowo płatny prąd według zużycia. Ogrzewanie oraz ciepła woda zapewniane są przez piec elektryczny. Istnieje możliwość podłączenia gazu do mieszkania. Forma własności - pełna własność. Powyższa oferta nie stanowi oferty handlowej w rozumieniu art. 66 § 1 kodeksu cywilnego oraz innych właściwych przepisów prawnych. Po więcej szczegółów zapraszam do kontaktu. Aleksandra Burzyńska tel. 533 302 747 Odpowiedzialność zawodowa licencja nr 20024 Zapewniam bezpieczeństwo transakcji pod nadzorem licencjonowanego pośrednika. |
| Forma właśności | własność |

| Imię Nazwisko | Aleksandra Burzyńska |
| Telefon kom. | 533302747 |