Szamotulska, Poznań
3pok | po generalnym remoncie | Jeżyce/Ogrody | loggia
569 000 zł
Numer oferty 4243
Stan oferty Aktualna
Województwo wielkopolskie
Miasto Poznań
Ulica Szamotulska
Dzielnica Ogrody
Cena sprzedaży 569 000 zł
Powierzchnia 47.74 m2
Liczba pokoi 3
Piętro 0
Liczba pięter w budynku 9
Typ budynku
Opis Polecam do zakupu 3-pokojowe mieszkanie z loggią i oddzielną kuchnią w jednej z najbardziej poszukiwanych lokalizacji Poznania – na pograniczu Jeżyc i Ogrodów, przy ul. Szamotulskiej.

To idealna propozycja zarówno dla pary lub rodziny z dzieckiem, jak i dla inwestora poszukującego mieszkania pod wynajem. Niezależny układ pomieszczeń oraz bliskość licznych wydziałów trzech uniwersytetów sprawiają, że lokal świetnie sprawdzi się również jako mieszkanie dla studentów.

Mieszkanie przeszło gruntowny remont i od jego zakończenia nie było jeszcze zamieszkiwane – wszystko jest nowe i gotowe do wprowadzenia.

>>> NAJWAŻNIEJSZE ATUTY:

- PO GENERALNYM REMONCIE;

- ATRAKCYJNA LOKALIZACJA - W POBLIŻU RYNEK JEŻYCKI, MOST TEATRALNY, JEZIORO RUSAŁKA, OGRÓD BOTANICZNY, PARK SOŁACKI, STARE ZOO;

- DOSKONALE SKOMUNIKOWANE przystanek "Żeromskiego" oraz PĘTLA TRAMWAJOWO - AUTOBUSOWA "Ogrody";

- PRZEMYŚLANY I FUNKCJONALNY UKŁAD 3 POKOJE I ODDZIELNA KUCHNIA,

- LOGGIA Z WIDOKIEM NA ZIELEŃ;

- W POBLIŻU LICZNE WYDZIAŁY UNIWERSYTETÓW.

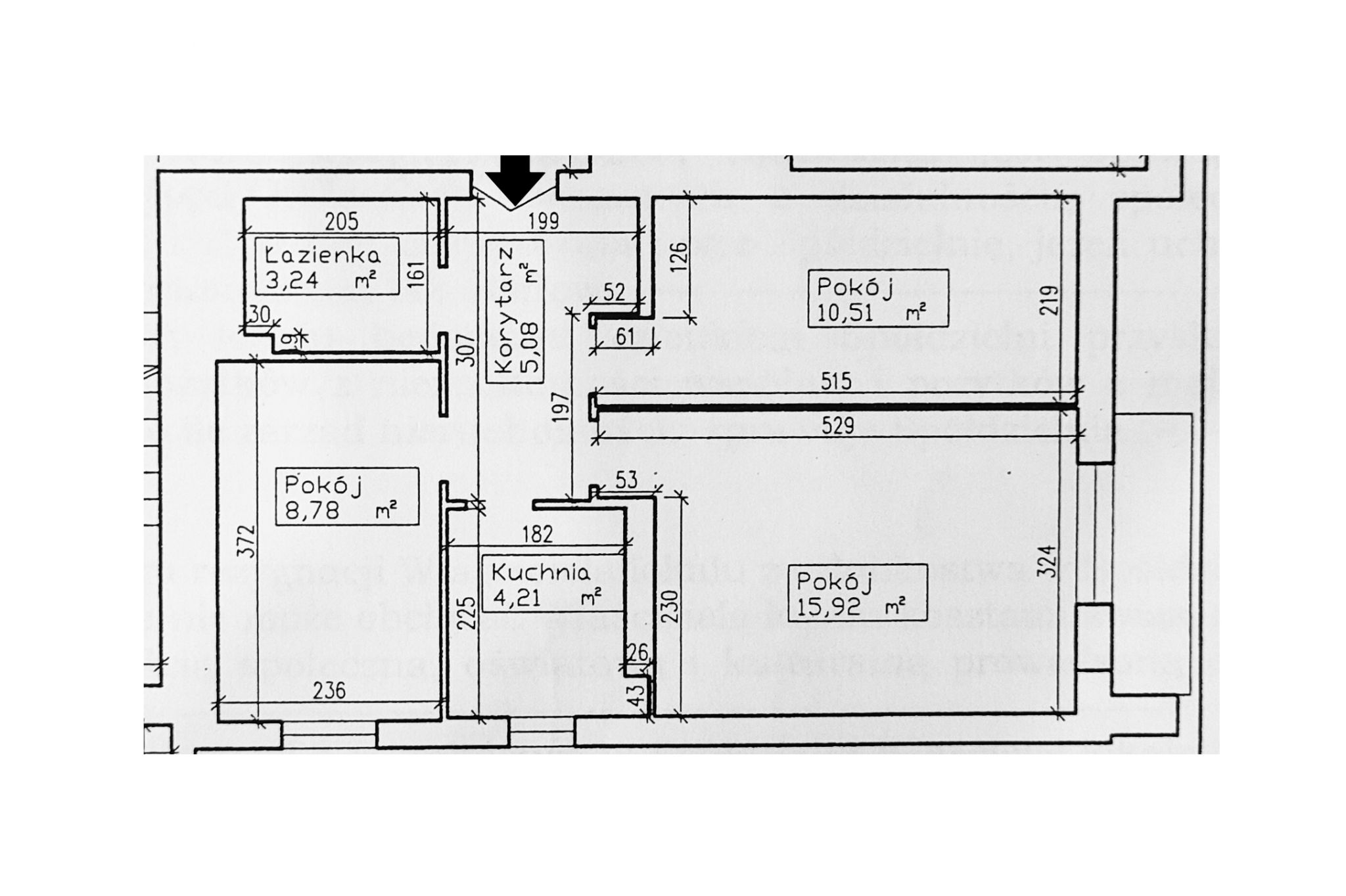
>>> POMIESZCZENIA I METRAŻ

Powierzchnia mieszkania wynosi 47,74 m² i obejmuje:

- przestronny pokój dzienny z wyjściem na loggię

- oddzielną kuchnię z oknem

- 2 ustawne sypialnie

- łazienkę

- korytarz.

Do mieszkania przynależy również piwnica o powierzchni 1,97m².

Układ pomieszczeń jest przemyślany i bardzo funkcjonalny.

Rzut pomieszczeń w załączeniu do ogłoszenia.

>>> LOKALIZACJA

Mieszkanie znajduje się nieopodal granicy Ogrodów i Jeżyc, które przez ostatnie lata stały się miejscem niezwykle popularnym i zyskały ogromną sympatię mieszkańców. W okolicy odnajdziemy: Rynek Jeżycki, Kino Rialto, Ogród Botaniczny, Park Sołacki oraz Jezioro Rusałka. Dodatkowym atutem jest bogata infrastruktura handlowo-usługowa – sklepy, restauracje, punkty usługowe oraz miejsca rekreacji. Krótko mówiąc – wszędzie jest blisko!

>>> STAN TECHNICZNY LOKALU

Po gruntownym remoncie przeprowadzonym pod koniec ubiegłego roku mieszkanie prezentuje się jak nowe i od zakończenia prac nie było jeszcze zamieszkiwane. Wszystkie instalacje zostały wymienione – zarówno elektryczna, jak i wodno-kanalizacyjna, co zapewnia komfort oraz bezpieczeństwo użytkowania na długie lata. W pokojach położono nowoczesne panele podłogowe, natomiast w kuchni i przedpokoju trwały gres. Ściany zostały wyrównane gładziami gipsowymi i pomalowane, dzięki czemu mieszkanie jest jasne, świeże i gotowe do wprowadzenia. Kuchnia oraz łazienka są w pełni wyposażone, a wszystkie sprzęty AGD są fabrycznie nowe. Dodatkowym atutem są nowe drzwi – zarówno wewnętrzne, jak i wejściowe.

Pokoje zostały częściowo umeblowane, co ułatwia szybkie urządzenie przestrzeni według własnych potrzeb. To idealna propozycja dla osób, które szukają mieszkania w standardzie „jak nowe”, bez konieczności przeprowadzania dodatkowych prac – wystarczy się wprowadzić i zamieszkać.

>>> STAN TECHNICZNY BUDYNKU

Mieszkanie znajduje się na parterze w 9-piętrowym budynku. Budynek jest zadbany i dobrze utrzymany – wyremontowano klatki schodowe, zamontowano nowoczesne windy, a przy wejściu działa domofon, co przekłada się na komfort i bezpieczeństwo mieszkańców. Otoczenie budynku zostało zagospodarowane zielenią, co tworzy przyjazną przestrzeń do codziennego życia.

>>> KOMUNIKACJA

W pobliżu bloku znajdują się przystanki tramwajowe i autobusowe - przystanek "Żeromskiego", a ok. 300 metrów dalej Pętla tramwajowo - autobusowa "Ogrody". Dojazd tramwajem do Rynku Jeżyckiego oraz Mostu Teatralnego, jednego z głównych węzłów komunikacyjnych miasta, zajmuje zaledwie kilka minut.

>>> CZYNSZ

Czynsz wynosi około 700 zł i obejmuje m.in.: eksploatację, fundusz remontowy, centralne ogrzewanie, wodę ciepłą i zimną, ścieki oraz wywóz śmieci. Dodatkowo płatny prąd i gaz (tylko kuchenka) według zużycia. Po zamontowaniu płyty elektrycznej lub indukcyjnej istnieje możliwość likwidacji gazu w mieszkaniu.

>>> OGRZEWANIE

Ogrzewanie oraz ciepła woda pochodzą z miejskiej sieci ciepłowniczej, dzięki czemu system jest wygodny, bezobsługowy i niezawodny.

>>> INTERNET

Do mieszkania doprowadzony jest światłowód, co zapewnia szybki i stabilny internet – szczególnie istotny dla studentów oraz osób pracujących zdalnie.

>>> FORMA WŁASNOŚCI

Pełna własność, księga wieczysta bez obciążeń.

>>> DOSTĘPNOŚĆ

Mieszkanie dostępne od zaraz po sprzedaży.

>>> CENA

Cena do negocjacji.

Zapraszam do kontaktu oraz na prezentację mieszkania.

W razie dodatkowych pytań pozostaję do dyspozycji.

Powyższa oferta ma charakter informacyjny i nie stanowi oferty handlowej w rozumieniu art.66 §1 Kodeksu Cywilnego.

Krzysztof Nadolny

Doradca ds. nieruchomości

POZNAŃSKIE NIERUCHOMOŚCI

ul. Zakrzewskiego 6A

61-693 Poznań

Forma właśności własność
Krzysztof Nadolny
Agent prowadzący
Imię Nazwisko Krzysztof Nadolny
Telefon kom. 784907594

Os. Dąbrowszczaków, Swarzędz
2 pokoje I słoneczne mieszkanie
2 pokoje ,1 piętro, 49.3 m2
410 000

Sokoła, Poznań
Sokoła - dwa niezależne pokoje w bloku z lat 90
2 pokoje ,1 piętro, 50.3 m2
525 000

Jaworowa, Poznań
Po Kapitalnym Remoncie
2 pokoje ,parter, 37 m2
444 000