os. Jagiellońskie, Poznań
2 pok na os. Jagiellońskim przy Rondzie Rataje
449 000 zł
Numer oferty 4251
Stan oferty Aktualna
Województwo wielkopolskie
Miasto Poznań
Ulica os. Jagiellońskie
Dzielnica Rataje
Cena sprzedaży 449 000 zł
Powierzchnia 37.6 m2
Liczba pokoi 2
Piętro 4
Liczba pięter w budynku 4
Typ budynku
Opis >>> ATUTY

2 pokoje | oddzielna kuchnia | wyposażone | ogrzewanie miejskie | funkcjonalny układ | atrakcyjna lokalizacja | 37,50m2 | dostępne od zaraz | Rataje - os. Jagiellońskie | doskonale skomunikowane | pełna infrastruktura | zielona okolica |

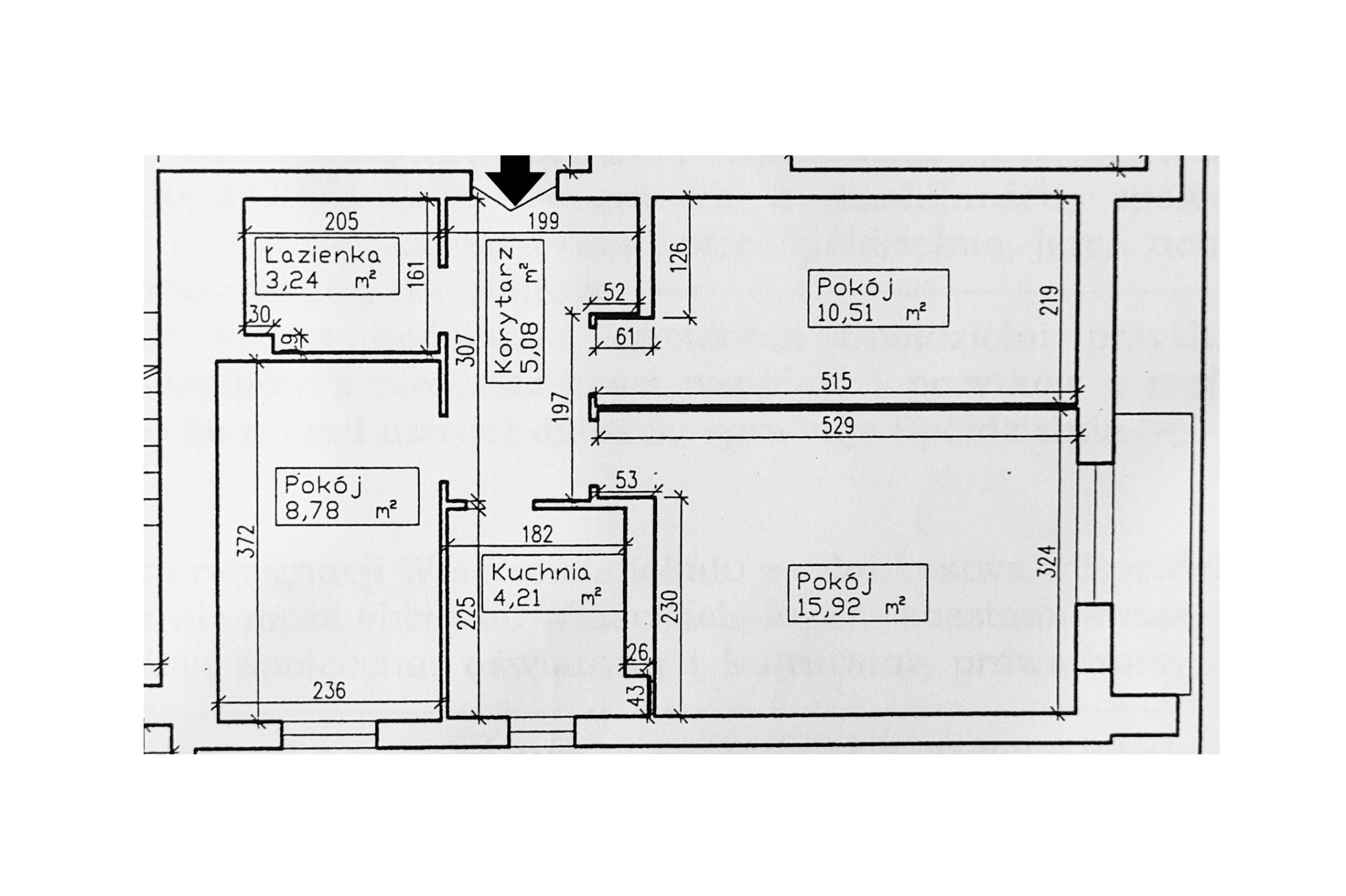
>>> POMIESZCZENIA I METRAŻ

Polecam na sprzedaż funkcjonalne, dwupokojowe mieszkanie, położone w sercu Rataj, na osiedlu Jagiellońskim, nieopodal Ronda Rataje.

Na powierzchnię 37,60 m² składają się:

- przestronny pokój dzienny,

- ustawna sypialnia,

- oddzielna kuchnia z oknem,

- łazienka z WC.

Dodatkowo do mieszkania przynależy piwnica – praktyczna przestrzeń do przechowywania.

>>> WYPOSAŻENIE

Mieszkanie jest w pełni umeblowane oraz wyposażone w sprzęt AGD: pralkę, lodówkę, kuchenkę gazową z piekarnikiem oraz okap. W sypialni i pokoju dziennym znajdują się meble z litego drewna. Na podłogach położono mozaikę parkietową (wymagającą cyklinowania) oraz płytki PCV, natomiast na ścianach wykonano gładzie gipsowe. Z okien rozpościera się widok na okoliczną zieleń, co zapewnia komfort oraz poczucie prywatności.

>>> BUDYNEK

Lokal znajduje się na 4. piętrze czteropiętrowego bloku po termomodernizacji. Budynek jest w dobrym stanie, a klatki schodowe są zadbane. Przy wejściu zamontowano domofon. Otoczenie budynku zostało zagospodarowane zielenią, co dodatkowo podnosi komfort życia mieszkańców.

>>> OKOLICA

Mieszkanie zlokalizowane jest w miejscu zapewniającym dostęp do pełnej infrastruktury: przedszkoli, szkół, targowiska oraz licznych sklepów (Biedronka, Chata Polska, Żabka, CH Posnania). W pobliżu znajdują się także siłownie i kluby fitness, pływalnia miejska POSiR oraz tereny rekreacyjne nad Wartą (Wartostrada, Park nad Wartą), Park Rataje i jezioro Malta.

To również doskonała lokalizacja dla studentów – w niedalekiej odległości mieszczą się Politechnika Poznańska oraz AWF.

>>> KOMUNIKACJA

Bliskość przystanków tramwajowych i autobusowych oraz Ronda Rataje – jednego z głównych węzłów komunikacyjnych w Poznaniu – zapewnia szybki i wygodny dojazd do wszystkich części miasta. To idealne rozwiązanie dla osób ceniących mobilność oraz oszczędność czasu.

>>> PARKING

Wokół budynku dostępne są ogólnodostępne miejsca postojowe. Dodatkowo, bezpośrednio przed blokiem znajduje się parking strzeżony.

>>> KONDYGNACJA

Mieszkanie położone jest na 4. piętrze w 4-piętrowym budynku.

Dzięki temu zyskujesz:

- lepsze doświetlenie wnętrz,

- większa cisza – brak sąsiadów nad mieszkaniem,

- mniejszy hałas z ulicy.

>>> CZYNSZ

Czynsz wynosi około 600 zł i obejmuje m.in.: koszty eksploatacyjne, fundusz remontowy, centralne ogrzewanie, ciepłą i zimną wodę oraz wywóz odpadów.

Dodatkowo płatne są: energia elektryczna oraz gaz (wyłącznie do kuchenki). Istnieje możliwość rezygnacji z gazu i przejścia na płytę elektryczną lub indukcyjną.

>>> OGRZEWANIE

Mieszkanie ogrzewane jest centralnie, z miejskiego systemu ciepłowniczego, co zapewnia wygodę użytkowania oraz stabilność.

>>> DOSTĘPNOŚĆ

Mieszkanie dostępne od zaraz po sprzedaży.

>>> CENA

Cena podlega negocjacji.

Zapraszam do kontaktu oraz na prezentację mieszkania.

W razie dodatkowych pytań pozostaję do dyspozycji.

Powyższa oferta ma charakter informacyjny i nie stanowi oferty handlowej w rozumieniu art. 66 §1 Kodeksu cywilnego.

Krzysztof Nadolny

Doradca ds. nieruchomości

POZNAŃSKIE NIERUCHOMOŚCI

ul. Zakrzewskiego 6A

61-693 Poznań

Forma właśności spółdzielcze-własnościowe z KW
Krzysztof Nadolny
Agent prowadzący
Imię Nazwisko Krzysztof Nadolny
Telefon kom. 784907594

Garbary, Poznań
Ataner | Garbary | balkon | miejsce postojowe
1 pokój ,2 piętro, 30.7 m2
499 000

Głogowska, Poznań
Mieszkanie przy Głogowskiej w kamienicy
2 pokoje ,1 piętro, 47 m2
475 000

Sokoła, Poznań
Sokoła - dwa niezależne pokoje w bloku z lat 90
2 pokoje ,1 piętro, 52.75 m2
499 000